(601) 472-3234
2 LEVELS
3 BEDS
2 BATHS

5895

SqFt
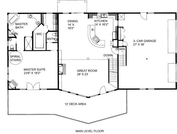
Total Sqft.5895
First Floor Sqft.2019
Second Floor Sqft.1857
Width80
Depth53
Levels2
Bedrooms3
Bathrooms2
Garage3 Car Spaces
Garage Sqft.1018
Ext. MaterialLap Siding
Siding
Stucco
(601) 472-3234
Monday-Friday
9AM-5PM CST

1 2 3 4


1 2 3 4 5+


1 2 3 4 5+







Questions & Ordering

(601) 472-3234 | Monday - Friday | 9AM - 5PM CST